SISTEMAS CONTRA INCENDIOS

PROTEGE TU EMPRESA CON EXTINTORES SENCO VIGO S.L.

Encuentra los mejores sistemas contra incendios en Vigo. Somos Extintores Senco Vigo S.L., una empresa que vela por la seguridad de viviendas particulares, comunidades de vecinos, empresas, colegios e instituciones públicas, entre muchos otros. Todos nuestros extintores y demás medidas preventivas poseen un certificado de calidad y garantía, sellado por diferentes empresas y asociaciones del sector.

¿Qué permisos disponemos?

Estamos autorizados por la Consellería de Industria. Disponemos de una amplia gama de certificados.

Empresa inscrita en el RII (Registro Integrado Industrial) como instalador, reparador, mantenedor y conservador para los siguientes sistemas:

  • Bocas de incendio
  • Columnas secas
  • Hidrantes
  • Abastecimiento de agua
  • Aerosoles
  • Agua nebulizada
  • Detección de incendios
  • Extintores
  • Rociadores y agua pulverizada
  • Señalización luminiscente
  • Espuma física

Además contamos con las certificaciones de las principales instituciones y organismos de control:

  • Empresa certificada con sistema de calidad y medioambiente
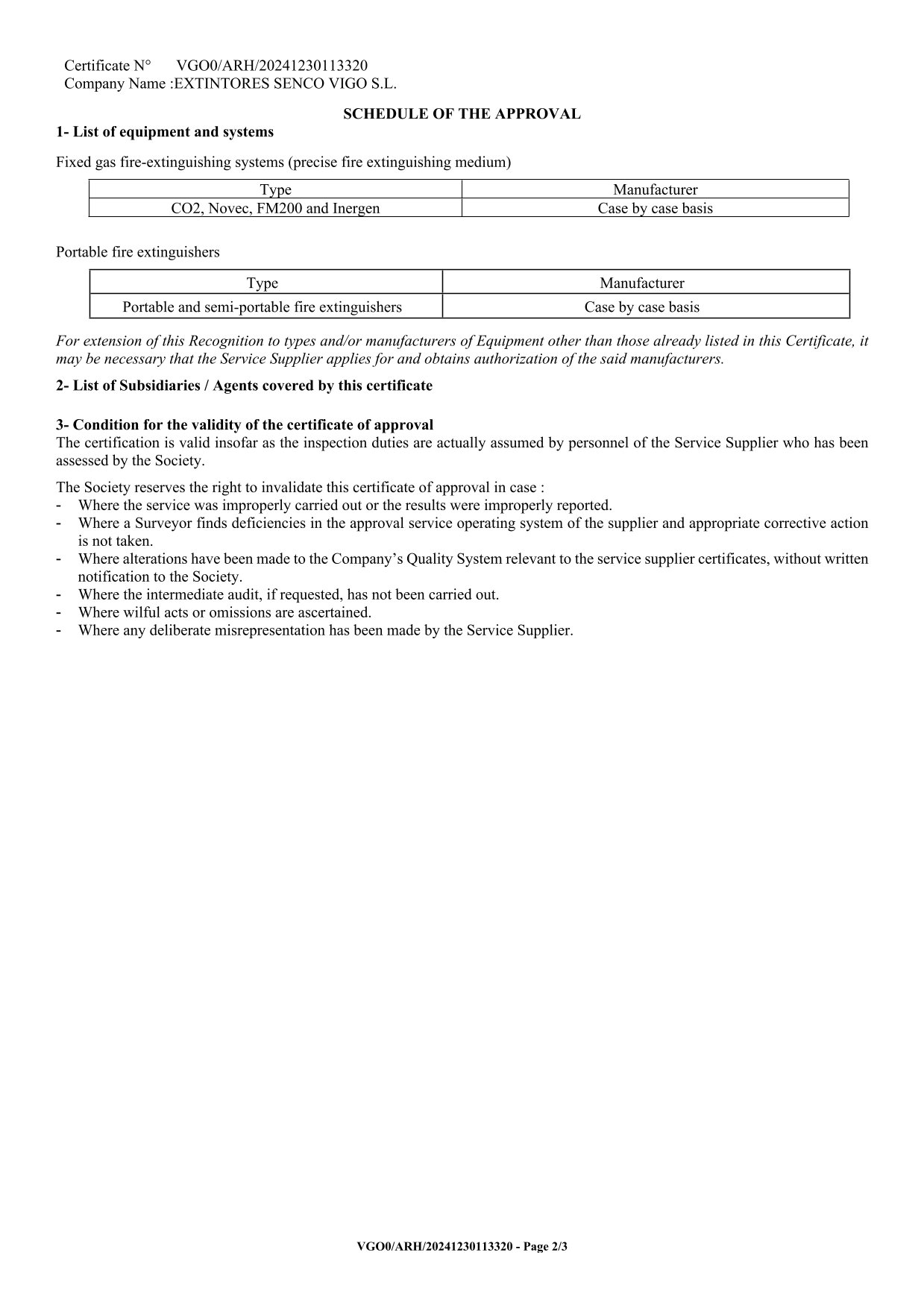
  • Empresa certificada como Service Supplier por Bureau Veritas, RINA y Lloyd´s.
  • Autorización Dirección General de la Marina Mercante
  • Miembro de AERME, la Asociación Española de Empresas Instaladoras y Mantenedoras de Sistemas Contra Incendios

Cumplimos para ti con las normativas pertinentes.

Empresa instaladora de sistemas contra incencios

Si estás buscando una empresa instaladora de sistemas contra incencios no dudes en ponerte en contacto con nosotros. Te mostraremos qué medidas has de cumplir legalmente y te aconsejaremos los puntos exactos donde colocar extintores, mangueras y demás sistemas de seguridad. También estamos registrados como empresa instaladora de equipos de presión, por lo que somos expertos en sistemas de apagado en cocinas o espacios con riesgo de aparición de fuegos.

Somos empresa mantenedora de protección contra incendios con más de diez años de experiencia en el sector. Proveemos de sistemas completamente modernizados de apagado y prevención de fuegos. ¿Tu oficina tiene material informático y delicado? Te mostramos los mejores extintores no dañinos.

PROTEGE TU RESTAURANTE DE FUEGOS CON LOS MEJORES EXTINTORES